Архитектор - Проекты домов - Разрешение на строительство
Telefon: 078 102 777
Pentru case individuale prețul proiectul variază de la 500€ până la 2000€ - în dependență de cerințele care le aveți.
Prețul dat include:
1. Schița de proiect - pînă la 3 modificari.
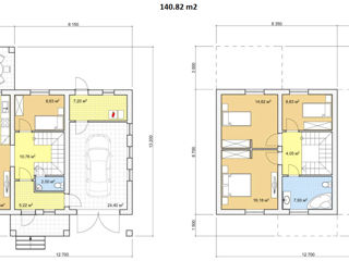
2. Capitolul Arhitectură - plane, fațade, secțiuni.
3. Capitolul Rezistență - plane fundații, coloane, planșee etc. Consumul de materiale - Beton, zidarie, armatură etc.
4. Verificarea proiectului - ștampilele necesare pentru obținerea autorizației de construcție.
Restul detaliilor se poate de discutat după stabilirea întâlnirii la oficiu.